Úsporný rodinný dom pre tých, ktorí hľadajú praktické riešenie s dôrazom na komfort a dizajn.
Projekt A10 kombinuje modernú architektúru s čistými líniami a funkčným dispozičným riešením. Ide o ideálnu voľbu pre 3–4 člennú rodinu, ktorá preferuje jednoduché, ale premyslené bývanie.
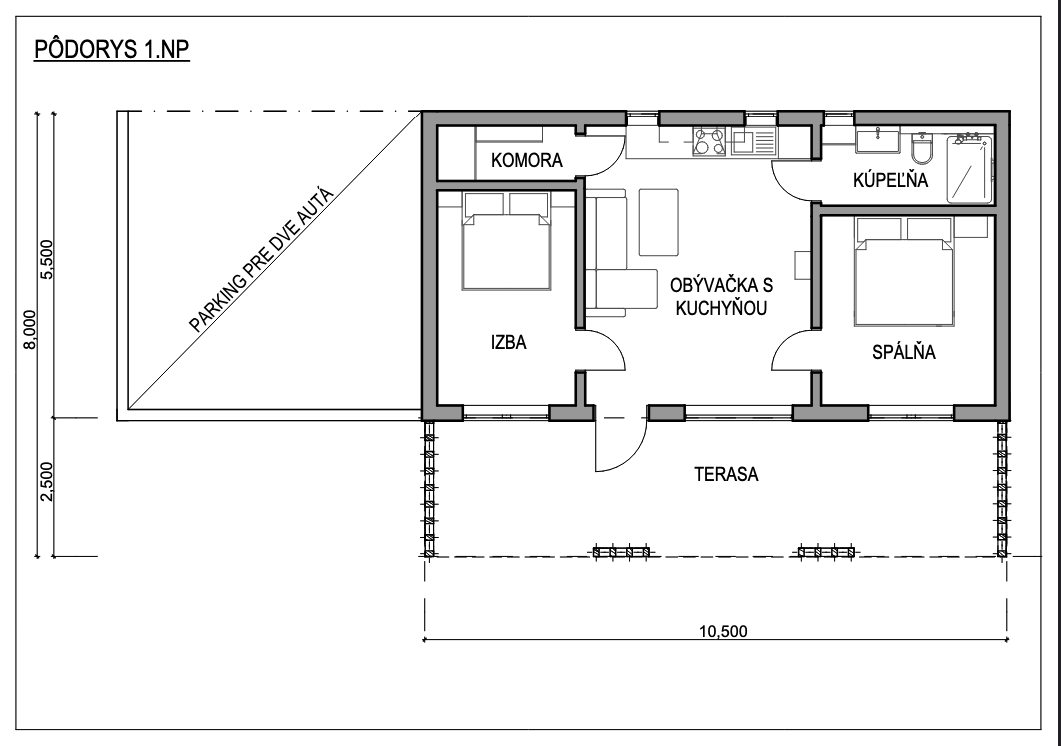
Dispozícia
Dom disponuje obývacou izbou s kuchyňou (23,8 m²), tromi spálňami, kúpeľňou, predsieňou, chodbou a integrovanou garážou. Z obývacej časti je priamy prístup na terasu s drevenou pergolou. Interiér je navrhnutý tak, aby ponúkal otvorený priestor pre denný život a zároveň dostatok súkromia v nočnej zóne.
Technológia a úspora energie
Stavba využíva SIP panely – systém, ktorý prináša rýchlu výstavbu, vysokú presnosť a vynikajúcu tepelnú izoláciu. Dom spĺňa parametre energetickej triedy A0, čo znamená nízke prevádzkové náklady a vysoký komfort bývania počas celého roka.
Kľúčové parametre
-
Úžitková plocha: 86,21 m²
-
Zastavaná plocha: cca 105 m² (vrátane garáže)
-
Počet izieb: 4 + obývačka s kuchyňou
-
Konštrukcia: SIP panely / drevostavba
-
Energetická trieda: A0
-
Typ: Jednopodlažný rodinný dom s garážou
-
Veľkosť: 53,00 m²
-
Cena: 87 450 €







